Godkendte tegninger til redskabshuse

Husene skal placeres og være opført i henhold til de af Frederikshavn Kommune godkendte tegninger, jf. nedenfor.

Bilag 12C

Bilag C7

Bilag C13

Bilag C17

 

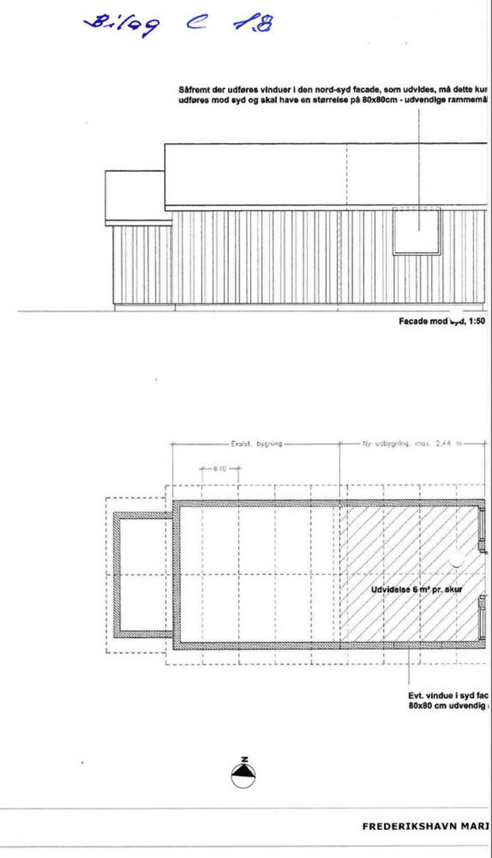
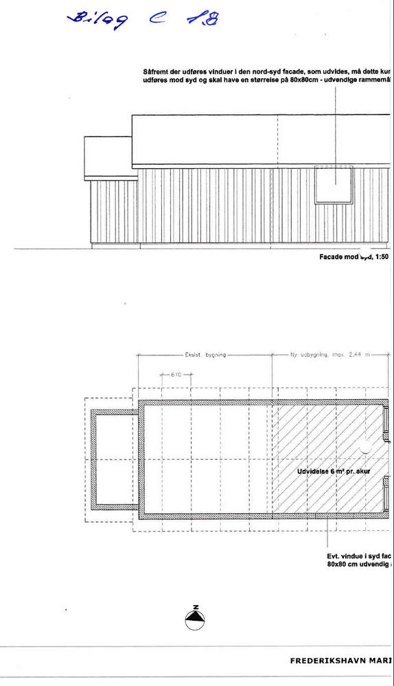
Bilag C18

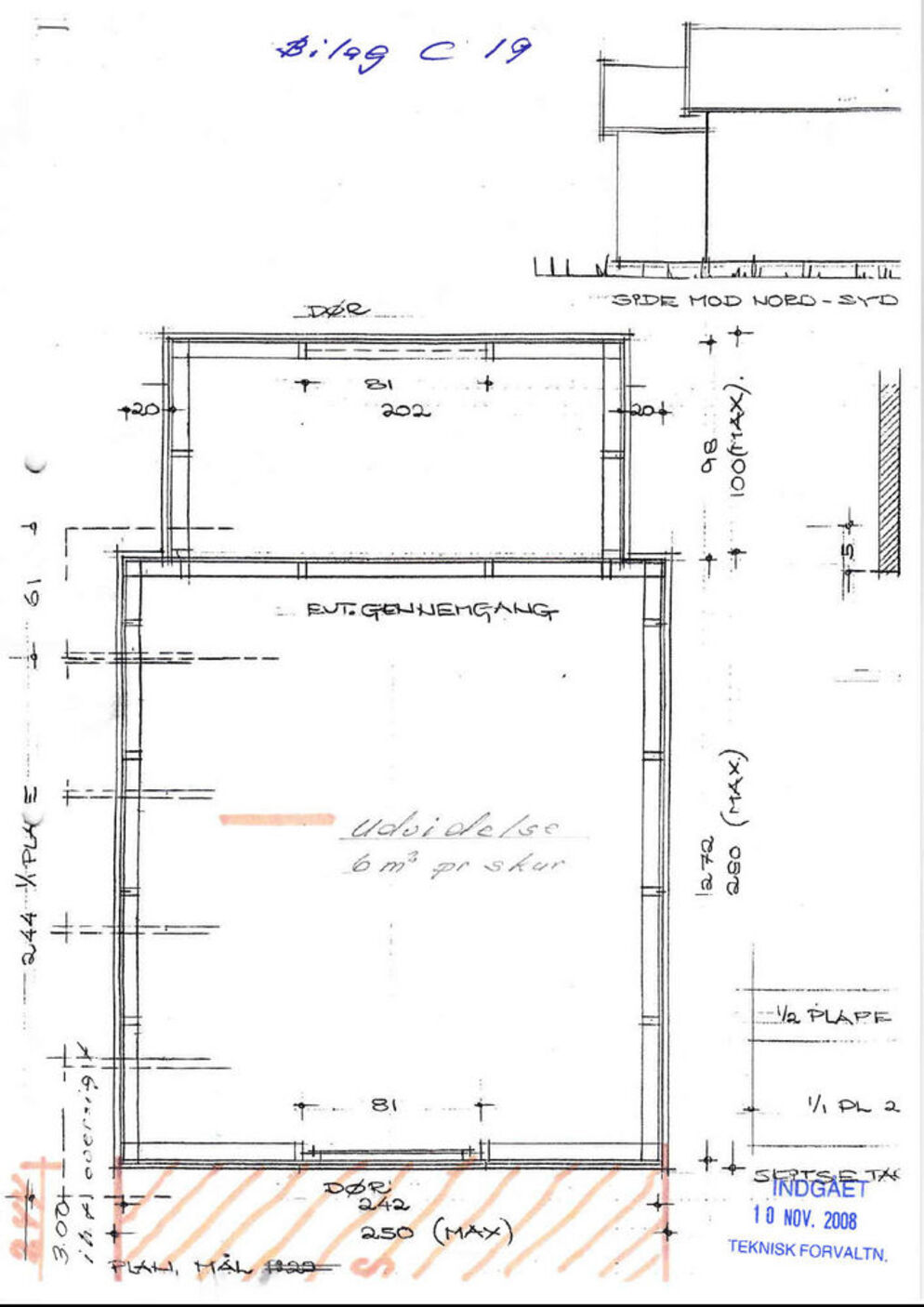
Bilag C19

Bilag C20

Bilag C21

 

Bilag C22

Bilag C23

Bilag C24